A former warrior, now turned monk, tells the story of how Arthur became the lord of war despite the illegitimacy of his throne.
The Winter King
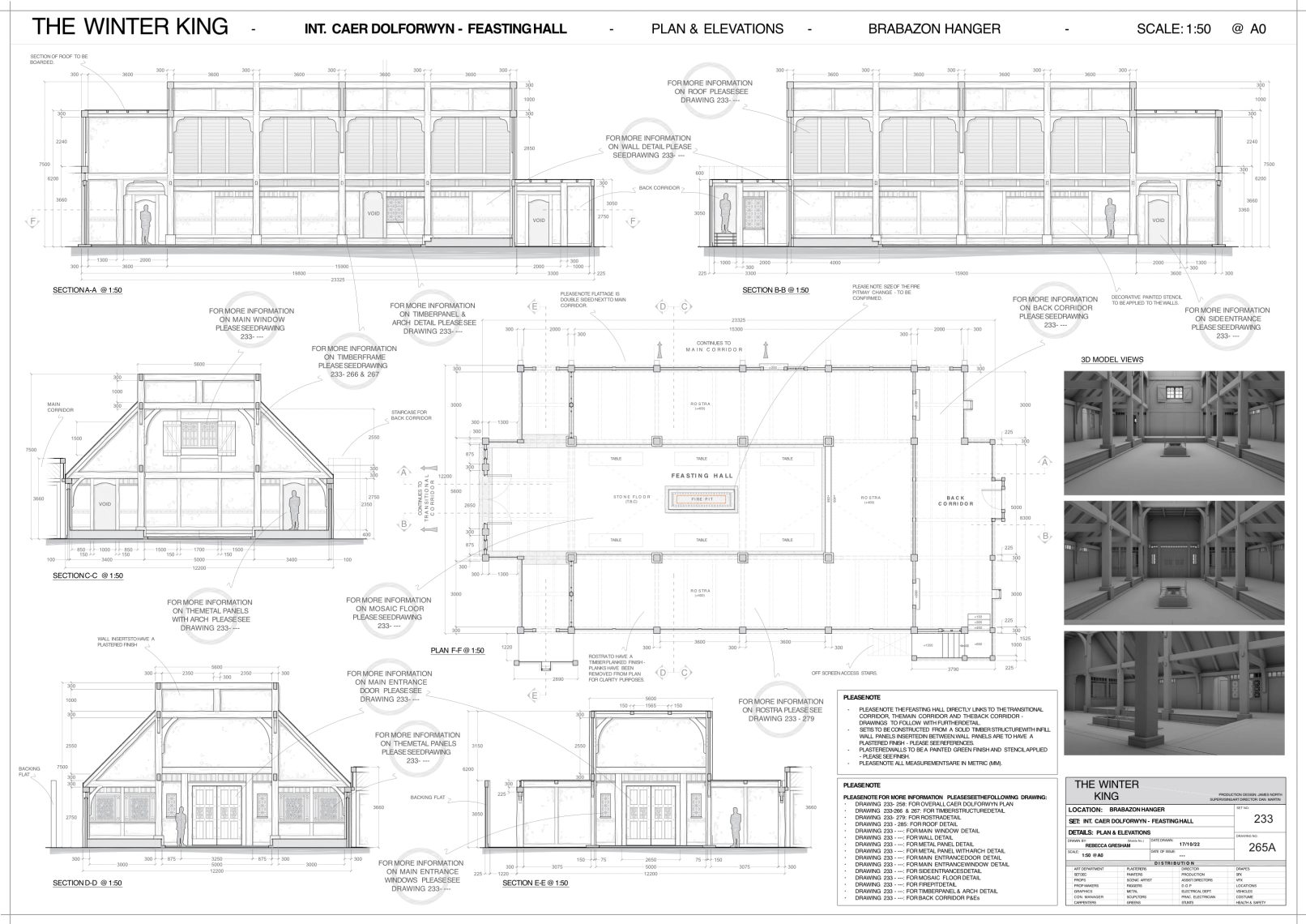
Various sets constructed in the studio & on location.
Directed by
Otto Bathurst
Production
Bad Wolf
Art Direction
Dan Martin
Distributors
ITVX / MGM+


















































